Villa in vendita , Parabiago, località Oltre Ferrovia / Ravello

Lombardia Milano Parabiago Oltre Ferrovia / Ravello via Righi Nuove Costruzioni: RESIDENZA VILLE IRIS

Prezzo

€ 515.000

Residenza Ville Iris - moderne ville in Classe Energetica A
Rif.: villa 1

  • Vendita
  • Contratto
  • 144 m²
  • Superficie
  • 4
  • Locali
  • 3
  • Camere
  • 2
  • Bagni
  • Lombardia
  • Regione
  • Milano
  • Provincia
  • Parabiago
  • Comune
  • Oltre Ferrovia / Ravello
  • Località

VILLE IRIS è una nuova realizzazione posizionata in una delle zone residenziali più belle e richieste di Parabiago identificata come Ravello-oltre ferrovia. L'intervento vede la realizzazione di sei ville singole, suddivise in due lotti da tre unità di varie metrature, tutte dallo stile moderno ed essenziale, indipendente una dalle altre. Le abitazioni saranno in CLASSE ENERGETICA A, dotate delle tecnologie costruttive di ultima generazione in tema di risparmio energetico. Ogni villa sarà disposta su due piani, terra e primo, con grandi giardini, porticati e terrazzi al piano primo, oltre box doppi. Ogni abitazione è da personalizzare nella scelte delle finiture quali pavimenti, rivestimenti e porte interne.

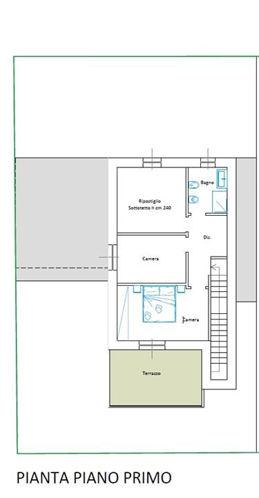
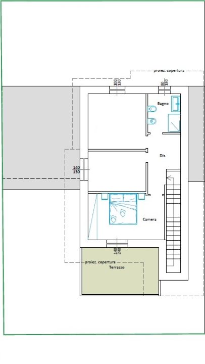
VILLA 1- € 515.000. Villa di 144 mq, Giardino di 165 mq, Portico di 20 mq e Terrazzo di 20 mq. Abitazione così suddivisa: piano terra di 66,50 mq con ingresso su ambia zona living, cucina abitabile o aperta a preferenza del cliente servita da bellissimo porticato di 20 mq, disimpegno, bagno; piano primo di 77,50 mq con camera matrimoniale servita da terrazzo, camera singola, camera doppia e bagno. Il giardino di 165 mq circonda i quattro lati della casa. Il box è doppio in larghezza.

Descrizione Giardino: giardino sui quattro lati

  • Classe Energetica
  • Epi
  • Epe
  • Emis. Q. Zero

Caratteristiche

Condizioni: Nuova Costruzione
Riscaldamento: Autonomo
Parcheggio: Box
Giardino m2: 165 Privato
Piano: Piano Terra - piani edificio: 1
Cucina: Abitabile
Arredato: Non Arredato
Terrazzo: Si m2 20
Balcone: No
Anno di Costruzione: 2025
Condizionatore: Predisposizione impianto
Cucina Abitabile
Porta blindata

Foto

Residenza Ville Iris - moderne ville in Classe Energetica A - 1
Residenza Ville Iris - moderne ville in Classe Energetica A - 2
Residenza Ville Iris - moderne ville in Classe Energetica A - 3
Residenza Ville Iris - moderne ville in Classe Energetica A - 4
Residenza Ville Iris - moderne ville in Classe Energetica A - 5
Residenza Ville Iris - moderne ville in Classe Energetica A - 6
Residenza Ville Iris - moderne ville in Classe Energetica A - 7
Residenza Ville Iris - moderne ville in Classe Energetica A - 8
Residenza Ville Iris - moderne ville in Classe Energetica A - 9
Residenza Ville Iris - moderne ville in Classe Energetica A - 10
Residenza Ville Iris - moderne ville in Classe Energetica A - 11
Residenza Ville Iris - moderne ville in Classe Energetica A - 12
Residenza Ville Iris - moderne ville in Classe Energetica A - 13
Residenza Ville Iris - moderne ville in Classe Energetica A - 14
Residenza Ville Iris - moderne ville in Classe Energetica A - 15
Residenza Ville Iris - moderne ville in Classe Energetica A - 16

Mappa

Immobili Correlati

Vendita
Residenza Ville Iris - moderne ville in Classe Energetica A
Residenza Ville Iris - moderne ville in Classe Energetica A
Residenza Ville Iris - moderne ville in Classe Energetica A
Residenza Ville Iris - moderne ville in Classe Energetica A
Residenza Ville Iris - moderne ville in Classe Energetica A
Residenza Ville Iris - moderne ville in Classe Energetica A
€ 495.000

Villa in vendita , Parabiago, località Oltre Ferrovia / Ravello

Residenza Ville Iris - moderne ville in Classe Energetica A

Lombardia Milano Parabiago Oltre Ferrovia / RavelloRif. villa 2

ville iris è una nuova realizzazione posizionata in una delle zone residenziali più belle e richieste di parabiago identificata come…

  • Superficie136 m²
  • locali4
  • camere3
  • bagni2
  • classe energetica
Invia la tua ricerca all'agenzia

Descrivi l'immobile che cerchi e invia la ricerca all'agenzia.

Proponi il Tuo Immobile

Proponi il tuo immobile alla nostra agenzia.

Newsletter Immobiliare

Ricevi le nostre proposte immobiliari direttamente nella tua email!

Benvenuto! Clicca su uno dei nostri assistenti per inviare un messaggio, vi risponderanno il prima possibile.

Chat via WhatsApp